BROU - T3
Appartement
Location
Brou
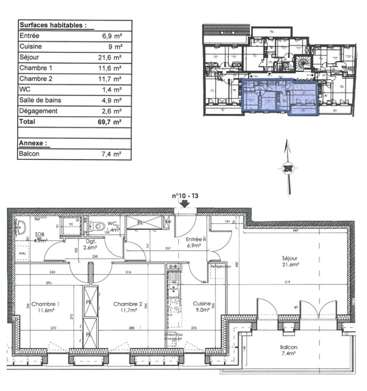
69 m²
3 pièce(s)
Chauffage Collectif Gaz
Douche
445.46€ (Hors charges)
Disponible le 09/05/2026
Description
Situé au 2ème étage, appartement de type 3 de 69 m² comprenant un séjour, 2 chambres, 1 salle de bain et un WC séparé.
Loyer : 445.46 €uros
Charges : 99.70 €uros
Loyer parking : 11.59 €uros
Cave : non
Parking : oui

Carte des alentours
Chargement de la carte en cours


