PIERRES - T5 en DUPLEX
Appartement
Location
Pierres
117 m²
5 pièce(s)
Chauffage Individuel Électrique
Baignoire
663.27€ (Hors charges)
Disponible le 20/05/2026
Description
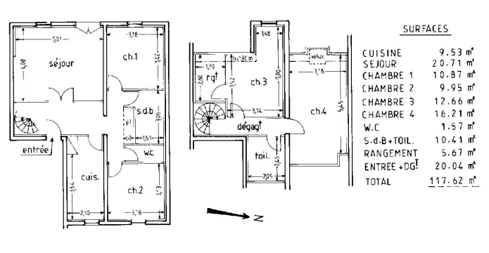
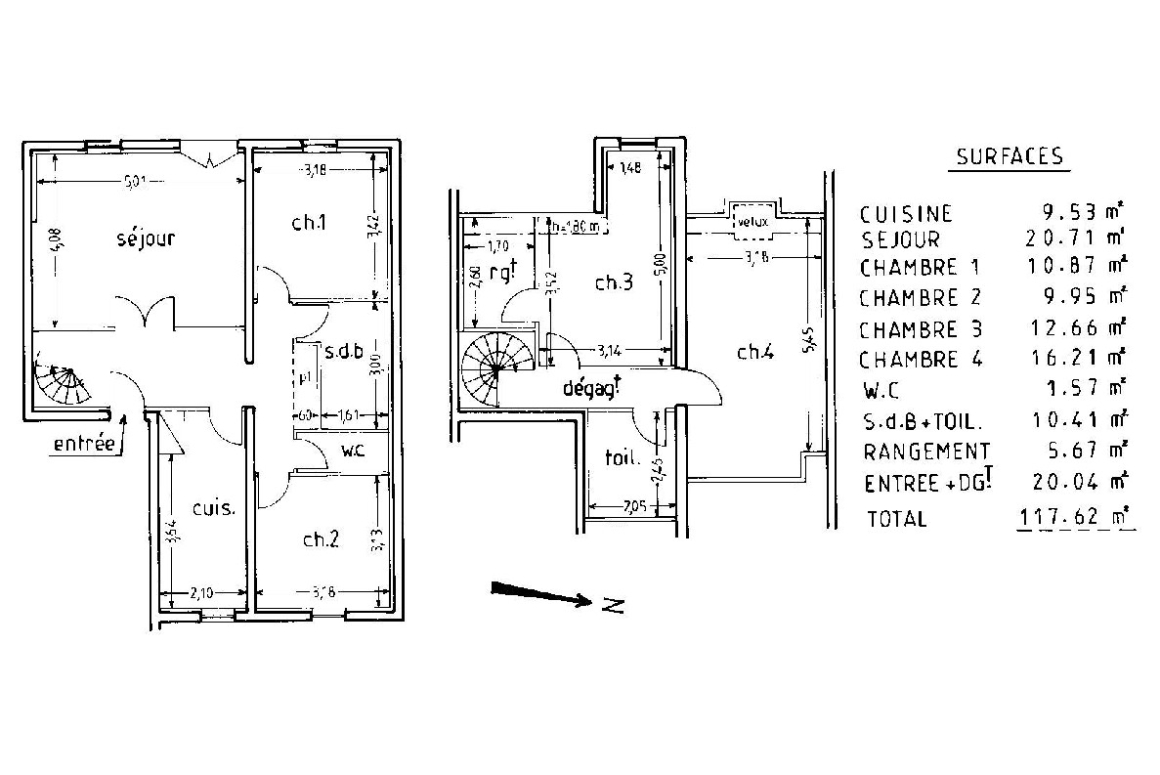
Situé au 1er étage d'une petite résidence en Centre Ville, appartement en duplex de type 5 de 117 m² comprenant un séjour, 4 chambres (de 10 à 16m2), 1 cellier, 1 rangement, 1 salle de bain et deux WC.
Loyer : 663,27 €uros
Charges : 115,40 €uros
Chauffage : non compris
Parking : oui


Plan du logement
Carte des alentours
Chargement de la carte en cours



